Skip To Content

872 Belle Rdg Lp

Bellevue, KY 41073
  • $649,000
  • STATUS: Active
  • ON SITE: 21 Days
  • MLS #: 637546
UPDATED: 160 min ago
$649,000
  • 3
    BEDS
  • 0.08
    ACRES
  • 2
    BATHS
  • 1
    1/2 BATHS
Neighborhood:
Type:
Single-Family Home
Built:
2026
County:

School Information

Elementary School:
High School:
School District:

Description

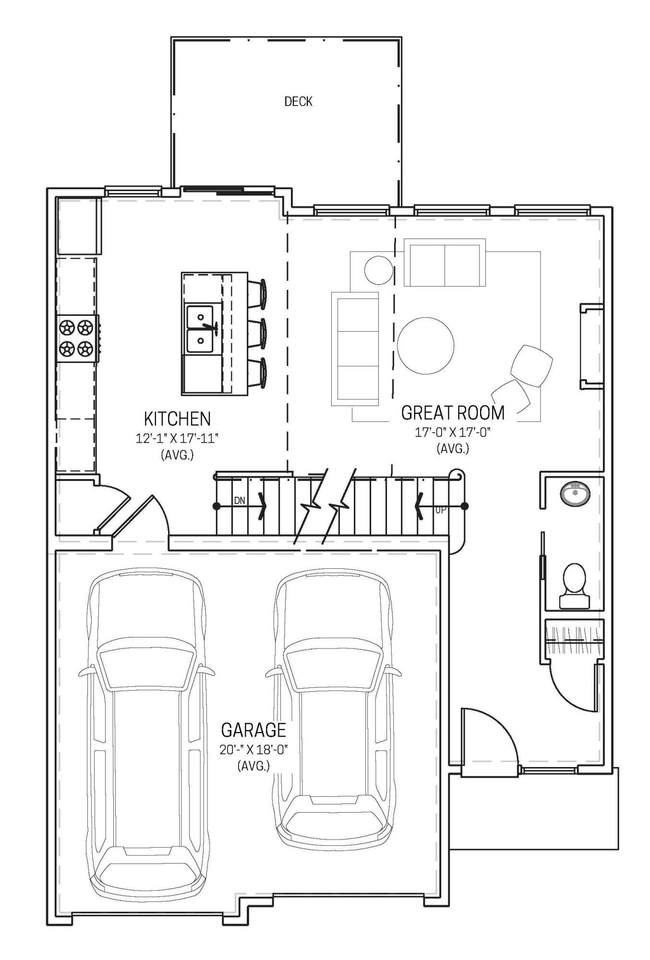
Highlights of this Cayenne model are an open and spacious great room area, a unique chalet style loft master bedroom space, access to a dramatic rooftop deck option for amazing indoor-outdoor living space, and lower level walkout basement with two additional bedrooms. Multiple stunning facade options also available! New Alternate plans for Buyer's choice of first floor master suite or elevator! Come experience one of a kind urban living in the completely new development of Reserve at Bellevue, the site of Northern Kentucky's Homefest. Development features amenities such as a beautiful entry pond with cascading waterfalls (directly below this lot!), community gathering spaces with fire pits and grill areas, a dog park area, and an approximately 1 mile combination of concrete and wooded walking paths. One of the largest new urban developments within just minutes of downtown Cincinnati, the river, and all the shopping of Newport Pavilion, the community also will feature potential views of downtown Cincinnati from upper rooftop decks. Buyer can pick from multiple cutting edge urban contemporary plans for this and other available ReaLife Homes lots.

Monthly Payment Calculator



Northern Kentucky MLS logo © 2025 Northern Kentucky Multiple Listing Service, Inc. All rights reserved. The data relating to real estate for sale on this web site comes in part from the Broker Reciprocity℠ Program of the Northern Kentucky Multiple Listing Service, Inc. Real estate listings held by brokerage firms other than Jim Simpson Realtors Inc are marked with the Broker Reciprocity℠ logo or the Broker Reciprocity℠ thumbnail logo (a little black house) and detailed information about them includes the name of the listing brokers. Information Deemed Reliable But Not Guaranteed. All data provided is copyrighted by the Northern Kentucky Multiple Listing Service, Inc. Its use is strictly for consumers of real estate and may only be displayed on the internet by participating members of the Northern Kentucky Multiple Listing Service. All attempts to illegally reproduce or host this data will be prosecuted to the fullest extent of the law. Data last updated: 2025-11-19T00:24:19.827.
www.jimsimpsonrealtors.com/homes/169319109
Print Image

872 Belle Rdg Lp Bellevue, KY 41073

  • Price: $649,000
  • Status: Active
  • On Site: 21 Days
  • Updated: 160 min ago
  • MLS #: 637546
3
Beds
2
Baths
1
½ Baths
0.08
Acres
2026
Built
Neighborhood:
Bellevue/Dayton/Wood
County:
Campbell
Area:
Bellevue/Dayton/Wood
Elementary School:
Crossroads Elementary
Middle School:
Campbell County Middle School
High School:
Campbell County High
School District:
Campbell Co Public
Property Description
Highlights of this Cayenne model are an open and spacious great room area, a unique chalet style loft master bedroom space, access to a dramatic rooftop deck option for amazing indoor-outdoor living space, and lower level walkout basement with two additional bedrooms. Multiple stunning facade options also available! New Alternate plans for Buyer's choice of first floor master suite or elevator! Come experience one of a kind urban living in the completely new development of Reserve at Bellevue, the site of Northern Kentucky's Homefest. Development features amenities such as a beautiful entry pond with cascading waterfalls (directly below this lot!), community gathering spaces with fire pits and grill areas, a dog park area, and an approximately 1 mile combination of concrete and wooded walking paths. One of the largest new urban developments within just minutes of downtown Cincinnati, the river, and all the shopping of Newport Pavilion, the community also will feature potential views of downtown Cincinnati from upper rooftop decks. Buyer can pick from multiple cutting edge urban contemporary plans for this and other available ReaLife Homes lots.
Exterior Features

Architectural Style Contemporary Attached Garage YN No Construction Materials HardiPlank TypeFiber Cement Exterior Features Private YardBalconyLighting Foundation Details Poured Concrete Garage YN Yes Levels Three Or More Parking Features DrivewayGarageGarage Door OpenerOff Street Patio And Porch Features DeckPatioPorch Road Frontage Type City Street Road Surface Type Paved Roof AsphaltMembraneShingle View PondValley View YN Yes

Interior Features

Appliances Stainless Steel Appliance(s)Electric OvenGas RangeDishwasherDisposalENERGY STAR Qualified AppliancesRefrigerator Basement Full Finished BathFinishedWalk-Out Access Cooling Central Air Cooling YN Yes Fireplace Features Electric Fireplace YN Yes Fireplaces Total 1 Heating Natural GasForced Air Heating YN Yes Interior Features Kitchen IslandWalk-In Closet(s)Smart ThermostatPantryOpen FloorplanGranite CountersEntrance FoyerEat-in KitchenDouble VanityChandelierCathedral Ceiling(s)Ceiling Fan(s)High CeilingsRecessed LightingVaulted Ceiling(s) Laundry Features Electric Dryer HookupLower LevelWasher Hookup Rooms Total 7 Window Features CasementVinyl Frames

Property Features

Association Amenities ParkingLandscapingLake Year RoundTrail(s) Association Fee 1200 Association Fee Frequency Annually Association Fee Includes Other Association YN Yes Lot Features ClearedCul-De-SacSloped Down Lot Size Dimensions 35x100 New Construction YN Yes Property Attached YN No Property Class Residential Property Condition To Be Built Property Sub Type Single Family Residence Security Features Smoke Detector(s) Sewer At StreetPublic Sewer Structure Type House Utilities Cable AvailableNatural Gas AvailableSewer AvailableUnderground UtilitiesWater Available Water Source Public Zoning Description Residential

Northern Kentucky MLS logo Courtesy of Tree Ridge Realty, LLC: 513-315-9200. © 2025 Northern Kentucky Multiple Listing Service, Inc. All rights reserved. Information has not been verified, is not guaranteed, and subject to change.


Northern Kentucky MLS logo © 2025 Northern Kentucky Multiple Listing Service, Inc. All rights reserved. The data relating to real estate for sale on this web site comes in part from the Broker Reciprocity℠ Program of the Northern Kentucky Multiple Listing Service, Inc. Real estate listings held by brokerage firms other than Jim Simpson Realtors Inc are marked with the Broker Reciprocity℠ logo or the Broker Reciprocity℠ thumbnail logo (a little black house) and detailed information about them includes the name of the listing brokers. Information Deemed Reliable But Not Guaranteed. All data provided is copyrighted by the Northern Kentucky Multiple Listing Service, Inc. Its use is strictly for consumers of real estate and may only be displayed on the internet by participating members of the Northern Kentucky Multiple Listing Service. All attempts to illegally reproduce or host this data will be prosecuted to the fullest extent of the law. Data last updated: 2025-11-19T00:24:19.827.
 
https://bt-photos.global.ssl.fastly.net/nkmls/1280_boomver_1_637546-2.jpg https://bt-photos.global.ssl.fastly.net/nkmls/1280_boomver_1_637546-2.jpg https://bt-photos.global.ssl.fastly.net/nkmls/1280_boomver_1_637546-2.jpg
Logo
Jim Simpson Realtors Inc
39 Broadway
Dry Ridge KY, 41035